
BRICKS HAVE BEEN INSTALLED AT THE PARK!

The following are pictures taken of bricks that have been put in place at the park. Click on any of the pictures to enlarge.
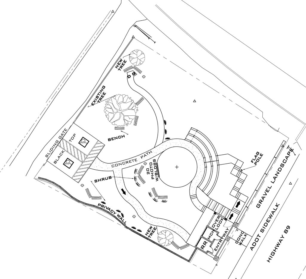
The finest memorial we can build in memory of the Granite Mountain Hotshots is developing Yarnell into a thriving, economically sustainable community. The Yarnell Fire Memorial Park, located at the corner of Highway 89 and Shrine Road in Yarnell, is part of that vision. The site was purchased with donations specified for the Memorial.
The design for the two-story facility was provided by faculty and staff of the Frank Lloyd Wright School of Architecture, and revised with community input over a four month period in 2015. Construction on the park continued as funding – all by donations – allowed. With community input, staff and students from the Frank Lloyd Wright School of Architecture developed three design possibilities for a memorial park. These were displayed and further resident input solicited over a four-month period in 2014. Adam Cosman, LLC, working in conjunction with the Frank Lloyd Wright School of Architecture, developed the next version of the Park design. The design continued to be modified as work progressed. The last version of the design is shown at the bottom of this page.
The Yarnell Hill Fire Memorial Park offers a more accessible way for visitors and family members to pay tribute to the Hotshots. Visitors have been able to use the Park’s public restroom since May of 2019. Signage enables visitors to learn about the 2013 Fire, the evacuation and recovery process, as well as Firewise education.
Granite Mountain Hotshots Centerpiece Takes the Stage at Yarnell Park
Unveiling event: Saturday, November 16, 2019 – 2 pm
22556 State Route 89



During October and November the base for the Memorial Sculpture was poured. Some of the seating for the amphitheater was created. The Sculpture was delivered by truck and a crane picked it up so it could be mounted on its base. Then a tarp was placed on the Sculpture to ready it for the unveiling on Saturday, November 16.
Residents, contributors, contractors, family members of the 20 and many others gathered for the unveiling. Denise Roggio sang Blazing Honor, Frances Lechner thanked the contributors and presented three bricks and the framed sample of the sculpture to Jack Rauh. Brendan McDonough, the surviving Hotshot, honored his firefighting brothers by helping to unveil the structure. Lew and Marcie Theokas read the names of the 19. The program was ended with an inspirational song.
It is our hope that this sculpture will help everyone to remember these men as the fun loving, wonderful people they were.












The iconic image of the Granite Mountain Hotshots in a human pyramid formation has been planned from the outset as the centerpiece of the Yarnell Hill Fire Memorial Park in downtown Yarnell. The image has been transformed into a 9’ etched steel image, and forms the backdrop for a flagstone performance area in the Yarnell Hill Fire Memorial Park. The structure was unveiled at a special event at the Park at on Saturday, November 16, at 2:00 pm. PMA Industries, Inc., E2 Innovations and Sabatina and Davis, all Valley firms, collaborated to bring the image to a whole new level of honoring the Hotshots. A generous donation by Bob and Sharon Ball made the construction of the centerpiece possible.
The Unveiling Event included performances by local musicians, brief comments by Board Members of the Yarnell Hill Recovery Group (now dba Yarnell Area Resource Group) which owns the Park, and special acknowledgements of the donors of funds, services and building materials for the Centerpiece, and other elements of the Park.
The historic image of the team in a human pyramid was taken at the world record alligator juniper tree in Prescott, saved from the Doce Fire a week prior to the Yarnell Hill Fire. The photo was recovered from the personal camera of Granite Mountain Hotshot Christopher MacKenzie. The photo of the hotshots has been modified, with family permission, to include two members of the crew who were not actually present for the photo and Chris who was taking the photo.
The Hotshot Pyramid, a memorial sculpture for the 20, was constructed by PMA, Industries, Inc. in Phoenix. E2 Innovations presented us with the inspirational message done in the same type of metal work that was used in the construction of the Hotshot Pyramid. A photo of the message is shown above.








































